강화토박이가 지은 집 이야기

페이지 정보

작성자 관리자 작성일19-07-25 19:46 댓글0건

본문

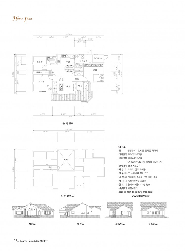
9beb3e6087aa7cac868b81cc9505a741_1564051
9beb3e6087aa7cac868b81cc9505a741_1564051
9beb3e6087aa7cac868b81cc9505a741_1564051
9beb3e6087aa7cac868b81cc9505a741_1564051
9beb3e6087aa7cac868b81cc9505a741_1564051
9beb3e6087aa7cac868b81cc9505a741_1564051
 

댓글목록

등록된 댓글이 없습니다.