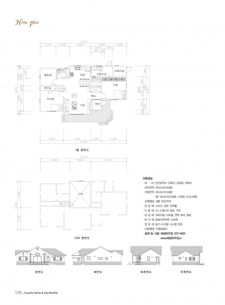
토박이가 지은집 강화도 30평 목조주택 태성하우징

페이지 정보

작성자 관리자 작성일19-09-20 06:35 댓글0건

본문

b028dfa802597a035274340e83021192_1568928
b028dfa802597a035274340e83021192_1568928
b028dfa802597a035274340e83021192_1568928
b028dfa802597a035274340e83021192_1568928
b028dfa802597a035274340e83021192_1568928
b028dfa802597a035274340e83021192_1568928

 

댓글목록

등록된 댓글이 없습니다.