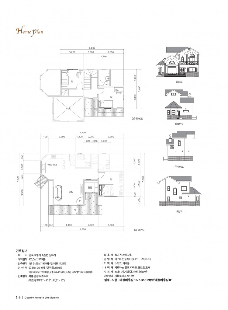
자연을 품은 예쁜 목조주택 포항 30평

페이지 정보

작성자 관리자 작성일19-09-20 06:19 댓글0건

본문

b028dfa802597a035274340e83021192_1568927
b028dfa802597a035274340e83021192_1568927
b028dfa802597a035274340e83021192_1568927
b028dfa802597a035274340e83021192_1568927
b028dfa802597a035274340e83021192_1568927
b028dfa802597a035274340e83021192_1568927
 

댓글목록

등록된 댓글이 없습니다.